0 (258) 613-1020
Talep ve Öneri
İletişim
Türkçe
ANASAYFA
BAŞKAN
Başkanın Özgeçmişi
Başkanın Mesajı
Başkanın Resimleri
KURUMSAL YAPI
Belediye Başkan Yardımcılarımız
Meclis Üyeleri
Müdürlüklerimiz
Eski Başkanlar
Muhtarlar
GÜNCEL
Meclis Kararları
Haberler
Duyuru / İlanlar
Faaliyet Rapoarları
İLÇEMİZ
Mahalleler
Tavas Zeybeği
Ekonomi
Gezilecek Yerler
Tarihçesi
Coğrafyası
PROJELERİMİZ
Tamamlanan Projelerimiz
Devam Eden Projelerimiz
Planlanan Projelerimiz
HİZMETLER
Emlak Beyanı
Yapı Kullanım
İnşaat Ruhsatı
Numarataj
Tarım ve Hayvancılık Destekleme ve Faaliyet
İşyeri Açma Ruhsatı
Evlilik Hizmetleri
Sevgi Eli
GALERİ
Foto Galeri
Video Galeri
İLETİŞİM
Anasayfa
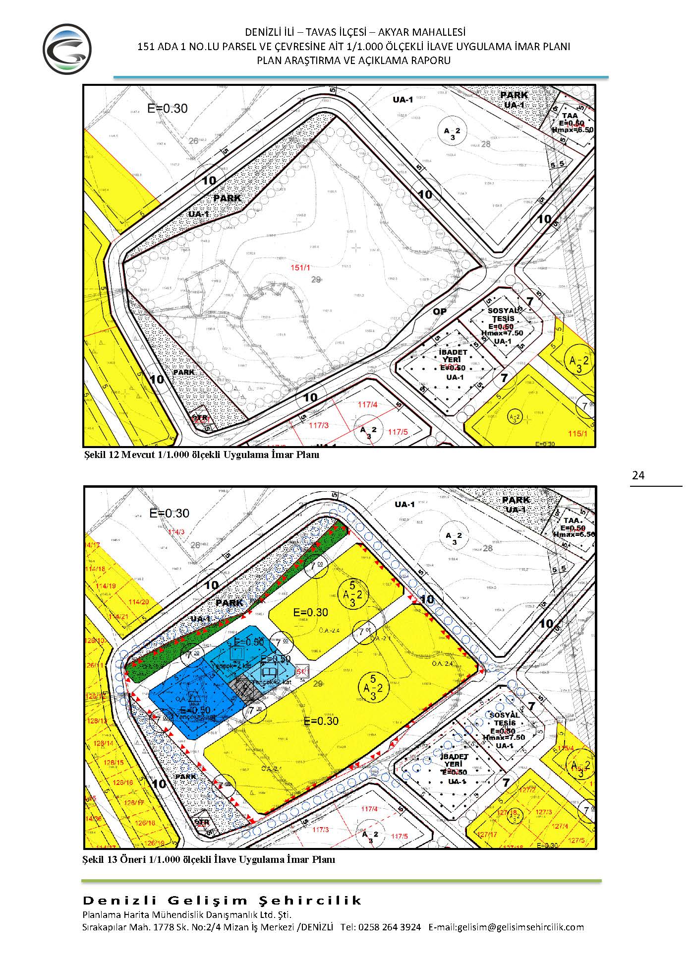
/ AKYAR MAHALLESİ 151 ADA 1 PARSEL İLE İLGİLİ UİP-201122110 PLAN İŞLEM NUMARALI 1/1.000 ÖLÇEKLİ İLAVE UYGULAMA İMAR PLANI ASKI İLANI
Geri
HIZLI MENU
Hızlı Menü
Başkanın Özgeçmişi
Başkanın Mesajı
Başkanın Resimleri
Eski Başkanlar
Meclis Üyeleri
Haberler
Duyuru / İlanlar
Tamamlanan Projeler
Devam Eden Projeler
İmar İşleri
Yapı Kullanım
İnşaat Ruhsatı
Vergi İşlemleri
İşyeri Açma Ruhsatı
Evlilik Hizmetleri
Etkinlikler
Foto Galeri
Video Galeri
İletişim Bilgilerimiz
AKYAR MAHALLESİ 151 ADA 1 PARSEL İLE İLGİLİ UİP-201122110 PLAN İŞLEM NUMARALI 1/1.000 ÖLÇEKLİ İLAVE UYGULAMA İMAR PLANI ASKI İLANI
12 Mart 2026, 08:13
172
Okuma
Fotoğraf Galerisi
×
Talep ve Öneri
Adınız Soyadınız
TC No
Doğum Tarihi
Hangi Yolla Cevap Almak İstersiniz?*
Yazılı
Elektronik
Telefon Numaranız
Cinsiteyiniz
Bay
Bayan
Engellilik Durumunuz
Engelli Değil
Engelli
Öğrenim Durumunuz
İlkokul
Orta Okul
Lise/Teknik Lise
Meslek Yük. Okulu
Üniversite
Yüksek Lisans
Doktora
Diğer
Mesleginiz
Oturma Yeri ve ya İş Adresi
İstenen Bilgi ve ya Belgeler